Продукція
HV Switchgear
  • HV SwitchgearHV Switchgear
  • HV SwitchgearHV Switchgear
  • HV SwitchgearHV Switchgear
  • HV SwitchgearHV Switchgear
  • HV SwitchgearHV Switchgear

HV Switchgear

Компанія Kyn28-12 HV Switchgear виробляється Kexun, виробником у Китаї. Він може реалізувати інтелектуальне управління системою та має функції дистанційного керування, телеметрії, віддаленого зв'язку та віддаленого регулювання. Польова мережа контролюється через CAN BUS з інтерфейсом зв'язку. У той же час, він має функцію "п’ять запобіжних заходів" для реалізації управління, захисту та моніторингу ланцюга.
Модель: KYN28-12
Бренд: KEXR

● Використання умов

▶ Температура повітря: -10 ~ 40 ℃;

▶ Висота: нижче 1000 м

▶ Вологість: Відносна вологість: середня щоденна менше 95%, а середня щомісяця не більше 90%

▶ Тиск водяної пари: Середнє значення щоденного значення не більше 2,2 кПа, а середнє значення щомісяця не перевищує 1,8 кПа ;; Коли температура раптово падає, може відбутися конденсація, що супроводжується забрудненням. Цей продукт підходить для наступних двох екологічних умов, які є більш серйозними, ніж звичайні умови:

(1) Конденсація не часто (не більше двох разів на місяць в середньому), і вона трохи забруднена;

(2). Як правило, конденсації немає (в середньому не більше двох разів на рік), що серйозно забруднюється

I

▶ Кін28-12 типу HV Switchgear підходить для місць, де немає насильницької вібрації, ударів та вертикальної схильності не перевищує 80.


Примітка:

(1) HV Switchgear дозволяє зберігати та транспортувати при -30 ℃

(2) коли висота перевищує 1000 м, вона повинна оброблятися відповідно до B/2102 "Технічні вимоги до електричного апарату високої напруги за допомогою областей висоти"; Коли висота не перевищує 2000 м, для допоміжного обладнання низької напруги;

(3) Коли фактичні умови використання відрізняються від вищезазначеного, він повинен узгоджуватися як користувач, так і виробник.


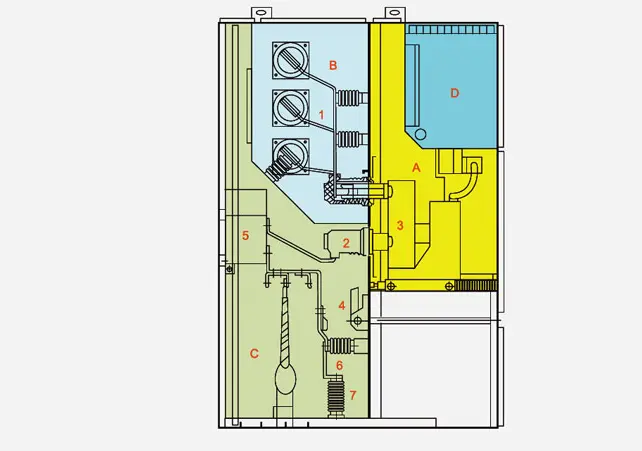
◆ HV Switchgear складається з двох частин: корпусу з фіксованою шафою та складеною частиною (коротка карта) (див. Малюнок для схематичної схеми конструкції HV Switchgear Bellows). Корпус шафи шафи та замахи та клапанки кожного функціонального блоку прикручуються сталевими пластинами з алюмінієвим цинком. Рівень захисту оболонки розподільних пристроїв досягає IP4X, а рівень захисту кожної плати розділених відсіків та дверей вимикача - P2X, коли він відкривається. HV-розподільний пристрій HV типу KYN28-12 може бути обладнаний VS1, Zn 12V вакуумним вимикачем та вакуумним вимикачем VD4, а також вакуумним контактором VC, виробленим компанією ABB. Шифер може бути встановлений у подвійних шафах, тобто в розташуванні назад до спини. Встановлення та налагодження шафи комутаторів можна здійснити спереду, щоб шафа -комутатор можна було встановити до стіни. Найбільша перевага встановлення на стіну - це збереження місця підлоги. Крім того, HV Switchgear можна встановити без стіни, тобто двостороннього типу технічного обслуговування. Внутрішня структура моделювання двох є непослідовною, і його перевага - зручне обслуговування.


◆ HV Switchgear Struction

Hv Switchgear

◆ Огляд комутатора HV типу Kyn28-12

Шафа-оболонка та розділ HV Switchgear виготовлені з сталевих пластин з покриттям з алюмінієвим цинком або сталевими пластинами після обробки та зігнутого верстатами з ЧПУ, а зібраний шафа-комутатор може підтримувати рівномірність розміром. Сталева пластина з алюмінієво-цинком має сильну антикорозійну та антиокисну ефекти та більшу механічну міцність, ніж одна і та ж сталева пластина. Інтер'єр HV Switchgear розділений на 1. Руковину для ручної роботи 2. Автобусна кімната 3. Кабельна кімната 4. Ретня прилади, а оболонка кожного пристрою має незалежне заземлення. Двері розподільного пристрою всі розпорошені електростатичним пластиком, щоб їхні поверхні мали переваги стійкості до удару, корозійної стійкості та красивого зовнішнього вигляду (колір може бути налаштований користувачами).


◆ Шелл та розділ

Оболонка та перегородки HV-розподільного пристрою типу Kyn28-12 виготовлені з високоякісних імпортованих алюмінієвих сталевих пластин, які болтовані після того, як будуть зігнуті верстатами з ЧПУ, тому зібраний HV-розподільний пристрій може підтримувати рівномірність розміром. Він має сильну стійкість до корозії та окислювальну стійкість і має більш високу механічну міцність, ніж одна і та ж сталева пластина. HV Switchgear розділений на кімнату для ручної роботи (відсік вимикача), автобусну кімнату, кабельну кімнату та кімнату для реле (кімната з низькою напругою) за розділом. Оболонка кожної одиниці незалежно обґрунтована.


◆ Розміри контуру HV Switchgear є як Bellows:

Висота (b)

2300 мм

Ширина (а)

Коли рейтинг струму гілки нижче перевищує 1600a, а струм розриву короткого замикання-31.5KA,

800 мм

При оцінці струму гілки шини вище 1600a.

1000 мм

Глибина (с)

Лінія, що надходить та вихідний

1500 мм

Накладна вхідна та вихідна лінія

1660 мм

Вага

800-1200 кг



Hv SwitchgearHv SwitchgearHv SwitchgearHv Switchgear


Гарячі теги: HV Switchgear, виробник комутаторів Китай, постачальник Kexun, фабрика шафи з високою напругою
Надіслати запит
Контактна інформація
  • Адреса

    №228 Дорога Вейшікі, зона економічного розвитку Юкінга, місто Венчжоу, провінція Чжецзян, Китай

  • Електронна пошта

    sales01@kexunelectric.com

Для запитів про коробку кабельної гілки, комутатора високої напруги, комутатора низької напруги або прайс -лист, будь ласка, залиште нам електронний лист, і ми будемо контактувати протягом 24 годин.
X
Ми використовуємо файли cookie, щоб запропонувати вам кращий досвід перегляду, аналізувати трафік сайту та персоналізувати вміст. Використовуючи цей сайт, ви погоджуєтеся на використання файлів cookie. Політика конфіденційності
Відхиляти прийняти